STB127 Sealed Terminal Box
STB127 밀폐형 단자함은 열전대 및 RTD와 같은 온도 센서를 신호 오류 없이 현장 신호 전송 케이블에 연결하는 데 적합합니다. 제공된 장착 어댑터를 사용하여 기계 신호 출력 구멍에 장착할 수 있습니다. 또한, 현장 신호 전송 케이블은 케이블 글랜드 또는 플렉시블 도관에 연결할 수 있습니다.
기계적으로 밀봉된 단자대는 내부 온도 센서 케이블을 통한 오일 누출을 차단합니다. 온도 센서가 기계 내부의 고압에 노출되면 윤활유가 내부 케이블을 통해 누출될 수 있습니다. 기계 측 단자대는 첫 번째 단자와 현장 케이블 두 번째 단자를 연결합니다. 온도 센서 유형과 동일한 유형의 케이블이 첫 번째 단자와 두 번째 단자 사이에 설치됩니다. 모든 부품은 고온 에폭시로 밀봉됩니다.
특징
- 가공된 알루미늄 본체
- 기계적 손상, 방수 및 방진 기능
- 기계 내부에서 신호 케이블을 통해 누출되는 고압 오일로부터 보호
- 각 소자(열전대 E, J, K, T형 및 RTD)로 온도 보상
- 온도 범위: -40°C ~ +120°C
- 기존 신호 출력 구멍에 기계적 장착
- 플렉시블 전선관 또는 케이블 글랜드와 직접 연결
- 보호 등급 IP 67
이용 가능 모델
| 모 델 | 명 칭 | 크 기 | 중 량 | 특 징 |
| 12701 | 4 Position, Single Row | 125 x 62 x55 mm | 600 gram | |
| 12702 | 6 Position, Single Row | 125 x 88 x55 mm | 900 gram | |
| 12703 | 8 Position, Double Row | 155 x 62 x55 mm | 950 gram | |
| 12704 | 12 Position, Double Row | 155 x 88 x55 mm | 1,250 gram | |
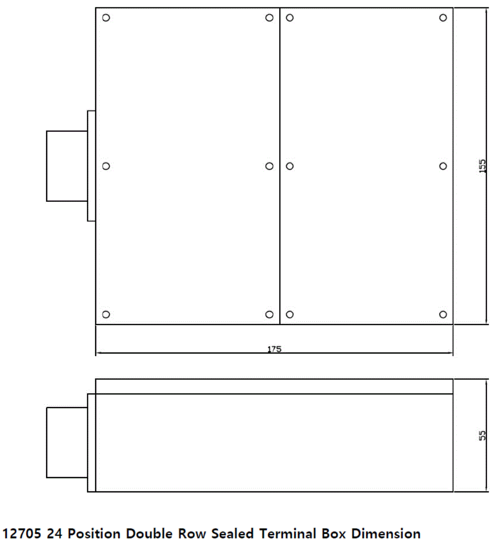
| 12705 | 24 Position, Double Row | 175 x 155 x55 mm | 1,900 gram |
주문정보
1270XX-AA-BB-CC
AA : Sensor Type
01 : RTD/General
02 : TC Type E
03 : TC Type J
04 : TC Type K
05: TC Type T
XX : Custom
BB : Mounting Adapter
01 : 1/2″ PT
02 : 3/4″ PT
03 : 1″ PT
11 : 1/2″ NPT
12 : 3/4″ NPT
13 : 1″ NPT
21 : M16 x 1.5
22 : M20 x 1.5
23 : M25 x 1.5
XX : Custom
CC : Cable Entry
01 : 1/2″ PT
02 : 3/4″ PT
03 : 1″ PT
11 : 1/2″ NPT
12 : 3/4″ NPT
13 : 1″ NPT
21 : M16 x 1.5
22 : M20 x 1.5
23 : M25 x 1.5
XX : Custom






